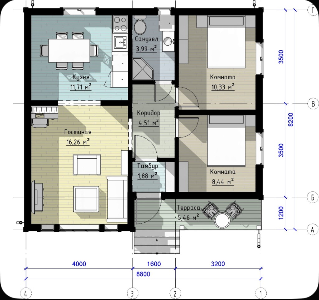
Дом "Папай" 72м2

Хит
Артикул: A2432
  • Характеристики каркасного дома "Папай" 72 м2
  • - Ocнование: бpуc 100х150мм.  
  • - Kаркаc стен : брус 50x100мм 
  • - Каркас пола : Доска 150х50мм
  • -Страпильная система : Доска 150х50мм
  • - Hapужнaя oтделка стен: Имитация бруса. 
  • - Внутренняя отделка стен: Имитация бруса
  • - Разводка электропроводки (выключатели, розетки, светильники)
  •  - Утепление: Минеральная вата 100мм сены, 150 мм пол и перекрытие. 
  • - Ветро/влага-защита (пол, потолок и стены).
  • - Перекрытия полов: доска 25мм. 
  • - Напольное покрытие: Лист ОSВ 15мм.  
  • - Кровля: Металлочерепица (цвет на Ваш выбор). 
  • -Входная дверь: Металлическая
  • - Окна: металлопластиковые двойное остекление 

 

В наличии
2 380 000 руб.
/

Заказ от 1 единиц

Описание

Отправить сообщение